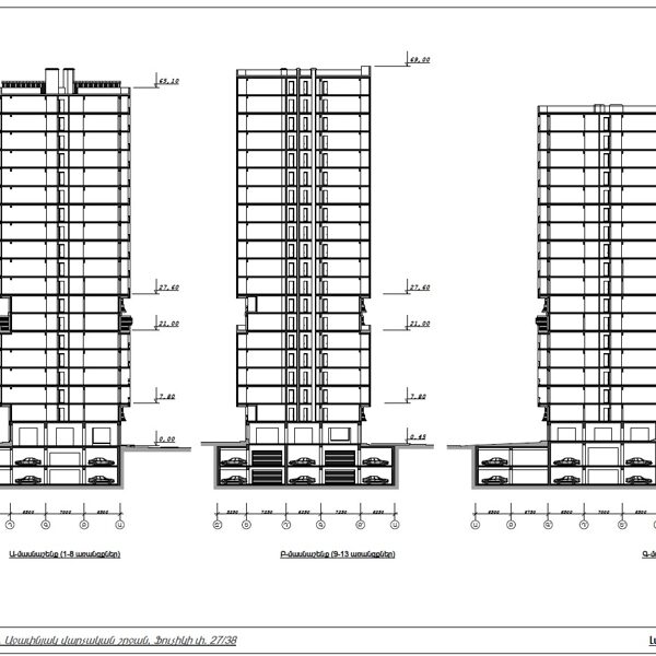
Շինթույտվությանբ,,, Աջափնյակ վարչական շրջանում, Ֆուչիկի 27/38 հասցեում է կառուցվում «Արաքս» բնակելի համալիրը: Համալիրը կազմված է 3 մասնաշենքից՝ 1-ին, 2-րդ, 3-րդ , յուրաքանչյուրը համապատասխանաբար՝ 18, 19, և 20 հարկ: Մասնաշենքերն ունեն եռահարկ ստորգետնյա կայանատեղիներ՝ ընդհանուր 314 կայանատեղի: Համալիրը գազաֆիկացված է , ջեռուցումն՝ անհատական: Տեղադրվելու են եվրոպական արտադրության պատուհաններ: Ընդհանուր տարածքը կազմում է 7472ք.մ, որից 3000 ք.մ–ն կանաչապատվելու է: Բակում լինելու է երեխաների համար նախատեսված խաղահրապարակ , ինչպես նաև զրուցարաններ՝ օրը հարևանների հետ առավել հաճելի դարձնելու համար: Արտաքին երեսպատումն իրականացվելու է ալիկաբոնդով:

Hrdeh_shantargel__shin_ashxt_vtarajin_lusav_odapox.pdf

G_masnashenq.pdf

B_masnashenq.pdf

A_masnashenq.pdfvkayakan_fuchik.pdf

vkayak_kfuchik_1.pdf

vkayakan_fuchik-1.pdf

APZ.pdf

Konstruktorakan_mas__3_.pdfFUCHIK.pdf

Jart-mas-artahanum.pdf

Fuchik_Jur_kojuxi.pdf

Fuchik_27-38_porcaqn__ezrakc.pdf

Fuchik27-38_jartarp__mas_yndhanur_lucumnerov.pdf

Աջափնյակ, Ֆուչիկի 27/38 Հող-7802քմ
Ներդրումային-էկոնոմիկա $/քմ
1քմ շին-արժեք/$-ստորգետնյա $200
1քմ շին-արժեք/$-վերգետնյա $360
Հողի և/կամ նախագծի արժեք/$ $3 500 000
Ստորգետնյա շին-մակերես/քմ 11737
Վերգետնյա շին-մակերես/քմ 54500
Կատարված հիմնավոր ծախսեր $2 000 000
Վաճառքի բնակելի մակերես/քմ 38019
Բնակելի տարածքի գին/քմ $1 200
Վաճ․ Հասարակական մակերես/քմ 1837
Հասարակական տարածքի գին/քմ $1 600
Վաճառքի Ավտոկայանատեղ/հատ 314
Ավտոկայանատեղ/գին $9 600
Ընդհանուր շինարարության արժեք $21 967 400
Ընհանուր ակնկալվող եկամուտ $51 576 400

Տեղը Յանդեքս քարտեզի վրա