Շինթույտվությանբ,,, 
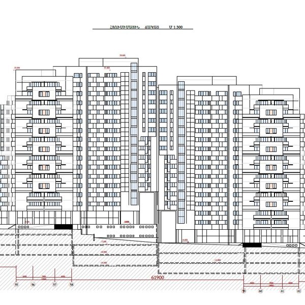
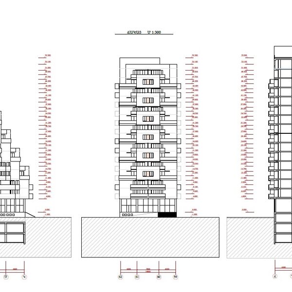
"ՆՈՐ-ԱՋԱՓՆՅԱԿ" Բազմաբնակարան Համալիր, 82000քմ, 
2600 հատ բնակարան
 
 
 
Տեղը Yandex քարտեզի վրա
            
Առաջարկվող բազմաբնակարան բնակելի համալիրը ներառում է 2600 հատ բնակարան, իսկ հողամասը գտնվում է Երևան քաղաքի Աջափնյակ վարչական շրջանի Մարտիրոսյան փող. 1 և 1/2 հասցեներում,,,
Բեռնել նախագիծը՝ 2-3-րդ փուլերը
| "ՆՈՐ-ԱՋԱՓՆՅԱԿ" Բնակելի Համալիր, 2600 բնակարան | Հող-82000քմ | 
| Ներդրումային-էկոնոմիկա | $/քմ | 
| 1քմ շին-արժեք/$-վերգետնյա | $260 | 
| 1քմ շին-արժեք/$-ստորգետնյա | $550 | 
| Հողի և/կամ նախագծի արժեք/$ | $31 000 000 | 
| Ստորգետնյա շին-մակերես/քմ | 96000 | 
| Վերգետնյա շին-մակերես/քմ | 300000 | 
| Կատարված հիմնավոր ծախսեր | $11 500 000 | 
| Վաճառքի բնակելի մակերես/քմ | 210000 | 
| Բնակելի տարածքի գին/քմ | $1 500 | 
| Վաճ․ Հասարակական մակերես/քմ | 30000 | 
| Հասարակական տարածքի գին/քմ | $1 600 | 
| Վաճառքի Ավտոկայանատեղ/հատ | 1980 | 
| Ավտոկայանատեղ/գին | $12 000 | 
| Ընդհանուր շինարարության արժեք | $189 960 000 | 
| Ընհանուր ակնկալվող եկամուտ | $386 760 000 | 
 
             
                                                     
                                                     
                                                     
                                                     
                                                     
                                                     
                                                     
                                                     
                                                     
                                                     
                                                     
                                                     
                                                     
                                                     
                                                     
                                                     
                                                     
                                                     
                                                     
                                                     
                                                     
                                                     
                                                     
                                                     
                                                     
                                                     
                                                     
                                                     
                                                     
                                                     
                                                     
                                                     
                                                     
                                                     
                                                     
                                                     
                                                     
                                                     
                                                     
                                                     
                                                     
                                                     
                                                     
                                                     
                                                     
                                                     
                                                     
                                                     
                                                     
                                                     
                                                     
                                                     
                                                     
                                                     
                                                     
                                                    