Շինթույտվությանբ,,, 
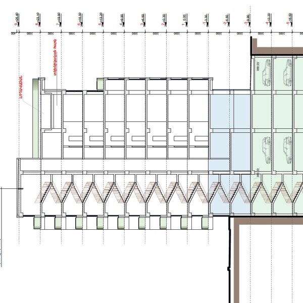
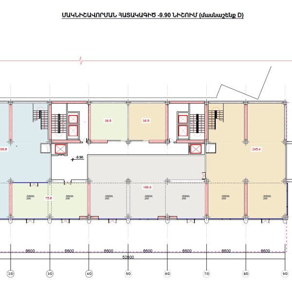
Պրեմիում դասի բազմաբնակարան բնակելի համալիր, գտնվում է՝ ք. Երևան, Մալաթիա-Սեբաստիա վարչական շրջան, Ծիծեռնակաբերդի խճուղի 33/3, Մոնթե Մելքոնյան փողոցի հաևանությամբ, 21 հարկանի,  հողատարածքը 
11413քմ
,,,
            
            
            
            
Բեռնել՝ վաճառքի ծավալային վերլուծությունը
Բեռնել՝ ճարտարապետական նախագիծը
| Մոնթե Մելքոնյան փ․ 21 հարկ, | Հող-11413քմ | 
| Ներդրումային-էկոնոմիկա | $/քմ | 
| 1քմ շին-արժեք/$-վերգետնյա | $260 | 
| 1քմ շին-արժեք/$-ստորգետնյա | $550 | 
| Հողի և/կամ նախագծի արժեք/$ | $14 500 000 | 
| Ստորգետնյա շին-մակերես/քմ | 27496.9 | 
| Վերգետնյա շին-մակերես/քմ | 72891 | 
| Կատարված հիմնավոր ծախսեր | $6 846 914 | 
| Վաճառքի բնակելի մակերես/քմ | 50731 | 
| Բնակելի տարածքի գին/քմ | $ 2 200 | 
| Վաճ․ Հասարակական մակերես/քմ | 4804 | 
| Հասարակական տարածքի գին/քմ | $2 500 | 
| Վաճառքի Ավտոկայանատեղ/հատ | 520 | 
| Ավտոկայանատեղ/գին | $17 600 | 
| Ընդհանուր շինարարության արժեք | $47 239 244 | 
| Ընհանուր եկամուտ | $132 770 200 | 
 
             
                                                     
                                                     
                                                     
                                                     
                                                     
                                                     
                                                     
                                                     
                                                     
                                                     
                                                     
                                                     
                                                     
                                                     
                                                     
                                                     
                                                     
                                                     
                                                     
                                                     
                                                     
                                                     
                                                     
                                                     
                                                     
                                                     
                                                     
                                                     
                                                     
                                                     
                                                     
                                                     
                                                     
                                                     
                                                     
                                                     
                                                     
                                                     
                                                     
                                                     
                                                     
                                                     
                                                     
                                                     
                                                     
                                                     
                                                     
                                                     
                                                     
                                                    