Շինթույտվությանբ,,, "ՊՐԱՅՄ ՀՈՄ"թաղ․ Ղափանցյան 4/9
Բեռնել՝ Ճարտ-մասը| "ՊՐԱՅՄ ՀՈՄ"թաղ․ Ղափանցյան 4/9 | Հող-903.4քմ | 
| Ներդրումային-էկոնոմիկա | $/քմ | 
| 1քմ շին-արժեք/$-վերգետնյա | $260 | 
| 1քմ շին-արժեք/$-ստորգետնյա | $500 | 
| Հողի և/կամ նախագծի արժեք/$ | $4 000 000 | 
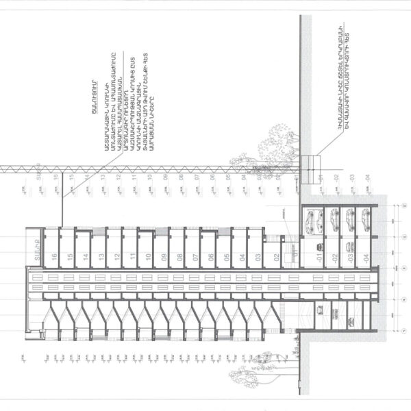
| Ստորգետնյա շին-մակերես/քմ | 3547 | 
| Վերգետնյա շին-մակերես/քմ | 10735 | 
| Կատարված հիմնավոր ծախսեր | $550 000 | 
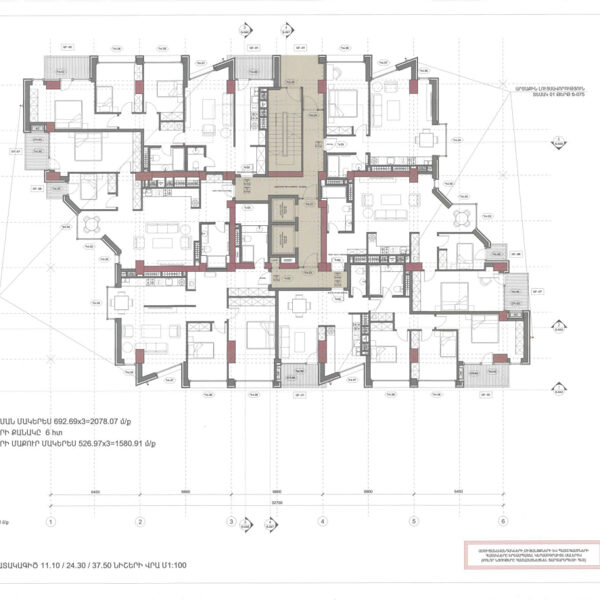
| Վաճառքի բնակելի մակերես/քմ | 9811 | 
| Բնակելի տարածքի գին/քմ | $2 000 | 
| Վաճ․ Հասարակական մակերես/քմ | 976 | 
| Հասարակական տարածքի գին/քմ | $3 000 | 
| Վաճառքի Ավտոկայանատեղ/հատ | 62 | 
| Ավտոկայանատեղ/գին | $16 000 | 
| Ընդհանուր շինարարության արժեք | $6 289 720 | 
| Ընհանուր ակնկալվող եկամուտ | $23 542 000 | 
 
             
                                                     
                                                     
                                                     
                                                     
                                                     
                                                     
                                                     
                                                     
                                                     
                                                     
                                                     
                                                     
                                                     
                                                     
                                                     
                                                     
                                                     
                                                     
                                                     
                                                     
                                                     
                                                     
                                                     
                                                     
                                                     
                                                     
                                                     
                                                     
                                                     
                                                     
                                                     
                                                     
                                                     
                                                     
                                                    